
Palmerston North
240 Broadway Avenue
P O Box 5004
Palmerston North 4414
Phone: 06 356 5122
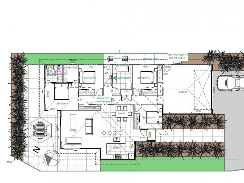
Design by Emerge Architecture combined with the quality and class of BB Construction Limited and you can be sure you are going to get a home you can truly be proud of. Look no further if you are needing a four bedroom home built to the latest building standards and a 10 Year Halo Certified Builders Guarantee. Expressions of interest are now being taken to the developers to secure your opportunity to be the new owner of this property to be built. The location is great - 307 Featherston is positioned close to CBD and walking distance to PNBHS. This is a Turn Key package including landscaping. Please inquire for a copy of the selections and specifications list for the property. In addition to this, the developer is open to your input into internal colours, fittings and fixtures which can be adjusted to suit your individual needs. Let BB Construction take the stress out of the process and watch your new home emerge.
4 bedrooms
2 bathrooms
2 garages
This Property